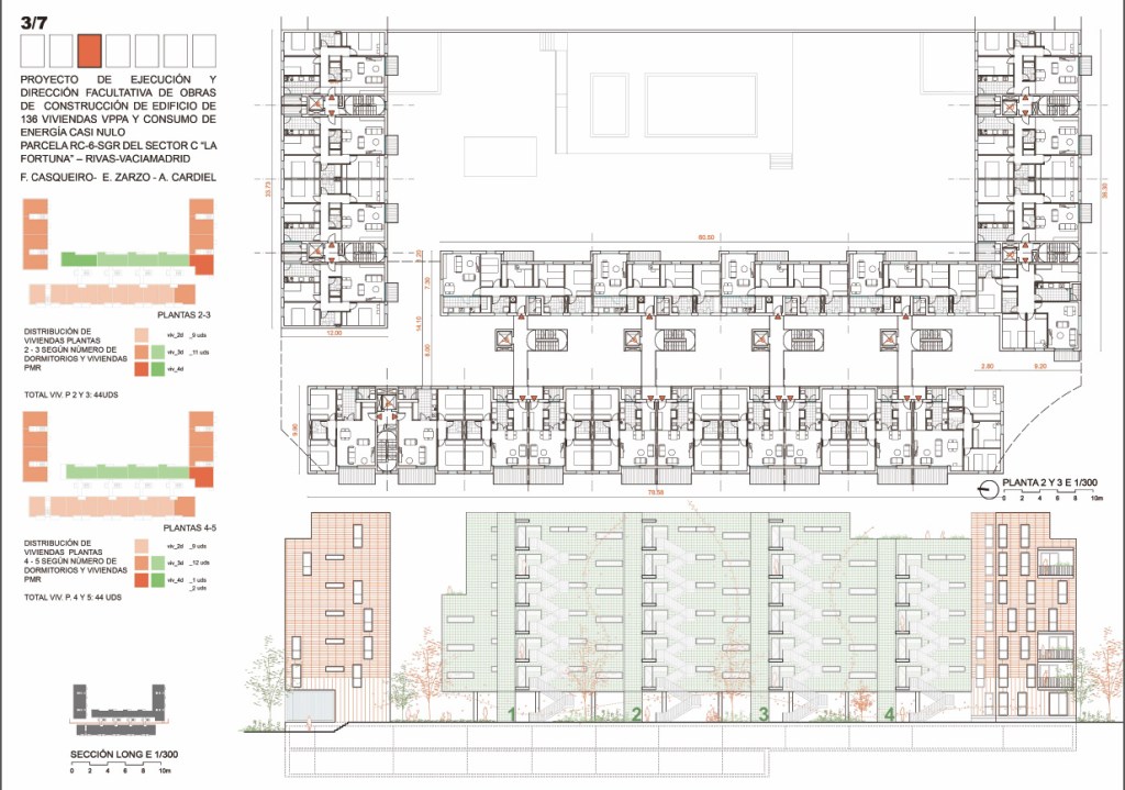
vivienda Edificio de viviendas VPPA. Rivas-Vaciamadrid Comparte esto: Comparte en Facebook (Se abre en una ventana nueva) Facebook Compartir en X (Se abre en una ventana nueva) X Me gusta Cargando... Relacionado