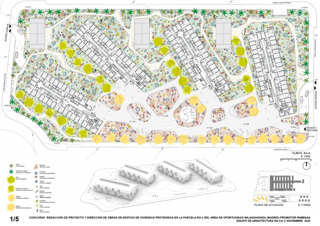
concursos, noticias, trabajos, vivienda 184 VPP en Majadahonda Comparte esto: Comparte en Facebook (Se abre en una ventana nueva) Facebook Compartir en X (Se abre en una ventana nueva) X Me gusta Cargando... Relacionado