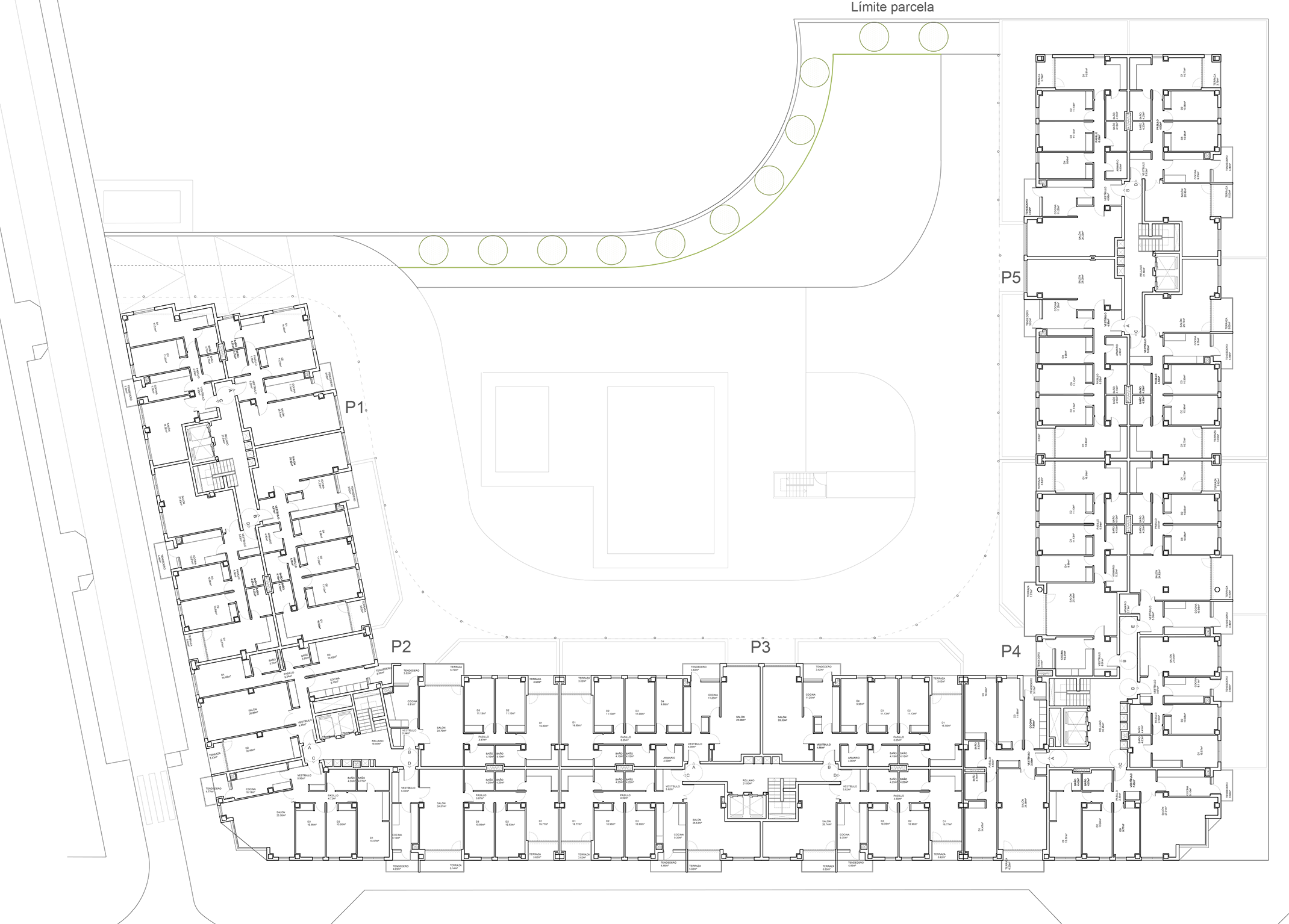
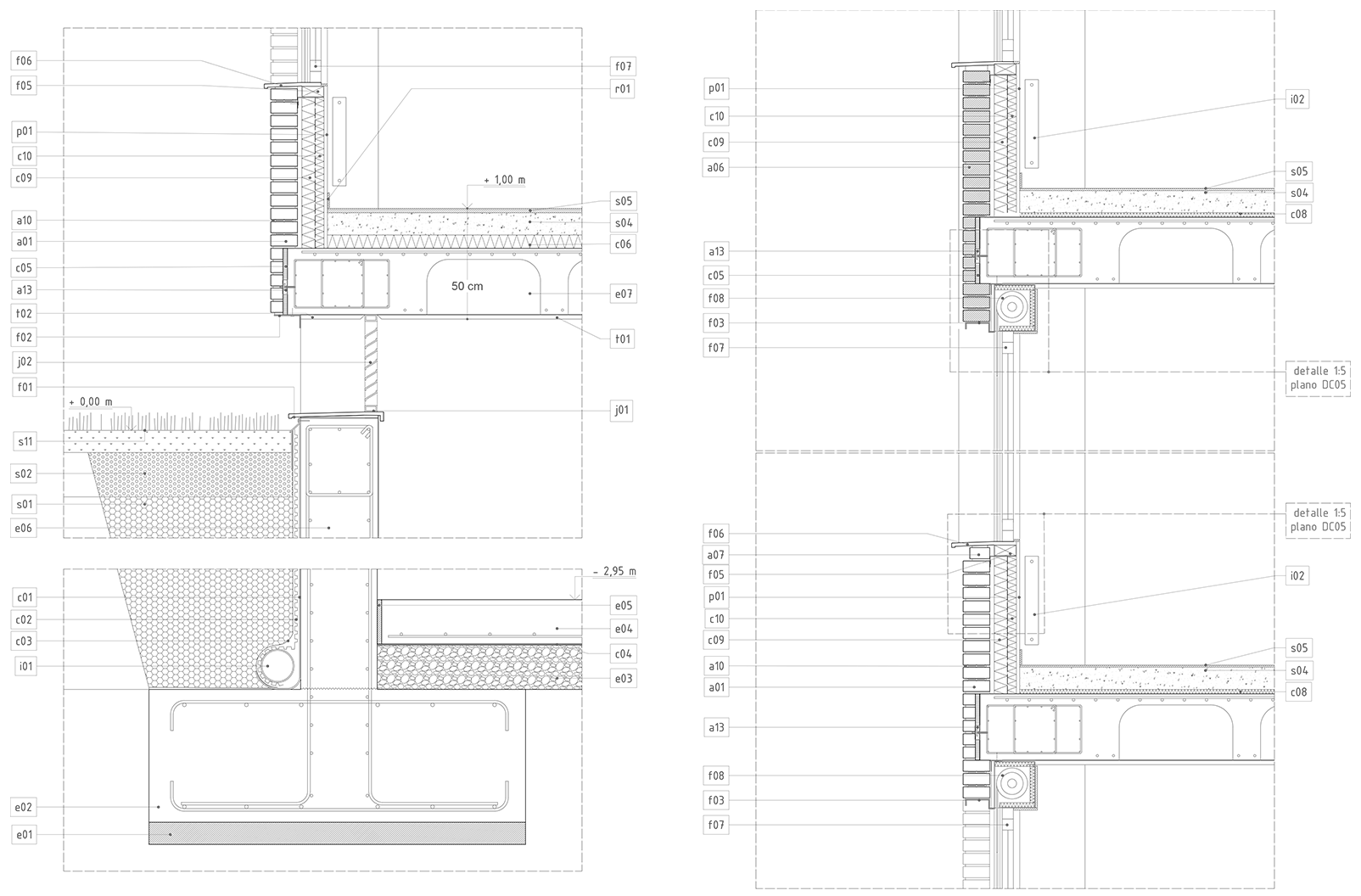
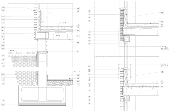
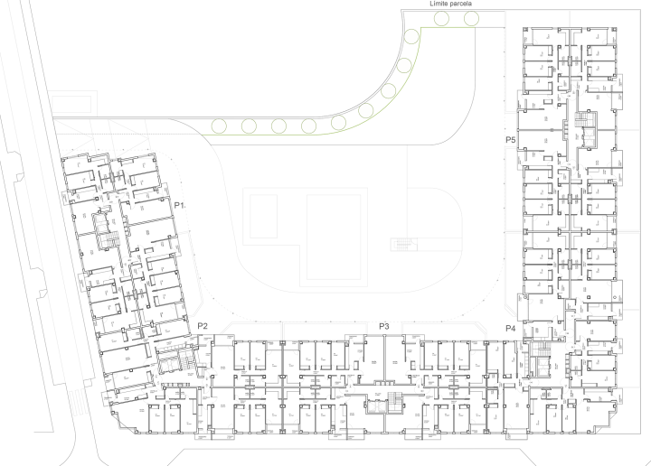
proyectos, trabajos, vivienda 88 VL en Alovera (Guadalajara) Comparte esto: Comparte en Facebook (Se abre en una ventana nueva) Facebook Compartir en X (Se abre en una ventana nueva) X Me gusta Cargando... Relacionado