PRIMER PREMIO EN CONCURSO DE ÁMBITO EUROPEO
Arquitectos: Raimundo Alberich Cid, Fernando Casqueiro Barreiro
Fecha de proyecto: 2008
Construcción: 30-09-2009 / 07-11-2012
Promotor: EMSULE (Empresa Municipal de Suelo de Leganés)
Empresa constructora: OGENSA
Localización: Parcela 5, en el nuevo barrio La Poza del Agua, Leganés (Madrid)
Superficie útil residencial (Sur): 11.993’09 m2
Superficie construida residencial (Scr): 15.535’62 m2
Scr/Sur = 1’29
Superficie construida garaje y trasteros: 7.867’45 m2
Superficie construida total (Sc): 23.403’07 m2
Presupuesto total: 10.986.534 €
Presupuesto unitario: 469’45 €/m2c
Entorno urbano
El edificio se sitúa en un barrio de nueva creación, entramado de calles de trazado radial y circunferencial. En el momento de iniciar el proyecto el barrio estaba semiocupado.
Su uso predominente es residencial y conviven en él varias morfologías urbanas. Algunas manzanas completas son destinadas a vivienda colectiva, otras a viviendas unifamiliares en hilera y algunas pequeñas localizaciones se destinan a vivienda unifamiliar aislada.
Planeamiento
El planeamiento urbano fija la morfología general, las alineaciones exteriores y establece un margen entre los 12’00 y los 14’50 metros para los fondos edificables.
Disposición General
El solar en el que sedispone el edificio ocupa una manzana completa.
El proyecto reivindica la forma y el tamaño de la manzana cuadrangular (aunque con dos lados curvos) de una hectárea como unidad configuradora de los nuevos entornos urbanos madrileños.
Las bases del concurso determinan agotar la edificabilidad del suelo, proponer el máximo número de viviendas y minimizar los costes y la cantidad de núcleos de comunicación vertical.
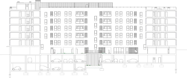
Nuestra propuesta: 174 viviendas, en 6 alturas con 8 núcleos de comunicación.
En los lados de la manzana, se proyectan viviendas pasantes con núcleo de esclarea y dos viviendas por rellano. En las esquinas de la manzana, se proyecta una disposición singular con hasta 5 viviendas por núcleo.
La arquitectura sólo puede proponer mejoras a lo ya prefijado. En la organización general se proyecta:
– Patio interior colectivo.
– Soportal perimetral en planta baja.
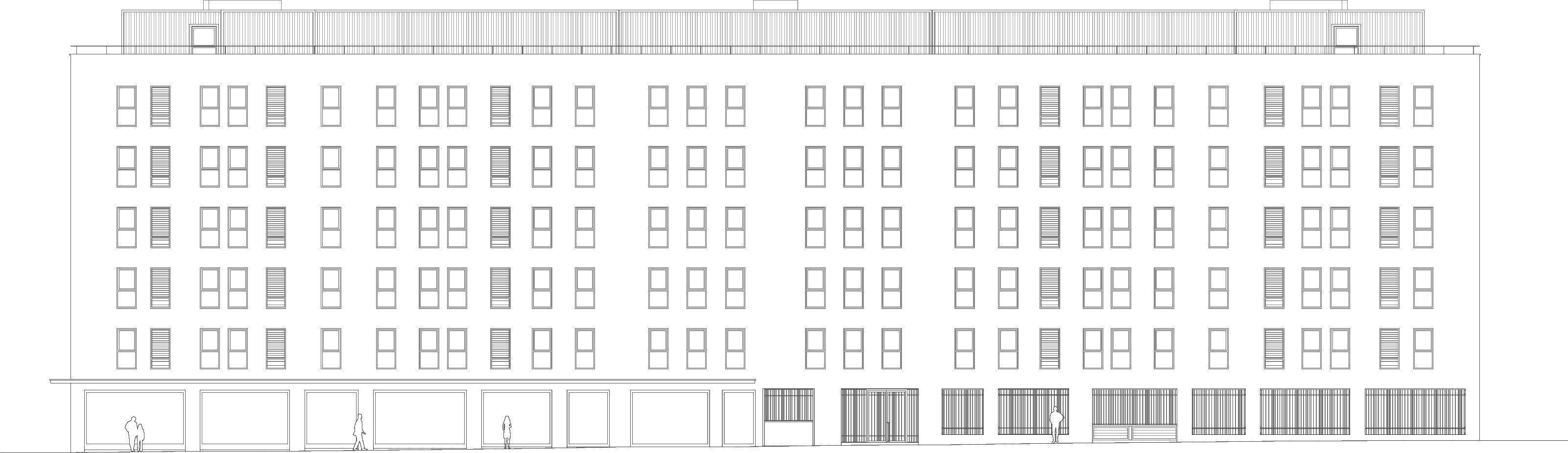
– Refuerzo de la forma urbana. Alineaciones curvas y ventanas de tamaño suficiente pero estricto. La repetición de un elemento sencillo refuerza la imagen del conjunto. Máximo confort con mínimo gasto.
Tipos residenciales
El tamaño y el programa obligatorio de las viviendas protegidas, añadido a las severas condiciones del concurso, determinaron la naturaleza de nuestra propuesta.
En los lados del edificio se disponen viviendas con orientación cruzada, dormitorios hacia el exterior y zonas públicas de cada vivienda hacia el patio interior comunitario.
La necesidad de reducir al máximo el número de ascensores condiciona la organización de las esquinas del edificio con hasta 6 viviendas por núcleo todas ellas con dos orientaciones aunque en algunas estas orientaciones son ortogonales.
Construcción
Se han conseguido unos muy altos niveles de calidad material, manteniendo los costes de construcción de la vivienda protegida. Muy alto control sobre la redacción del proyecto, sobre la elección de materiales y sobre la dirección de obra.
Los objetivos: durabilidad, aislamiento acústico y térmico y reducción de los costes de mantenimiento.
Los medios empleados: Hormigón armado, ladrillo visto cocido a muy alta temperatura (klinker) y dimensiones especiales (14 cm de tizón), fuertes aislamientos térmico y acústico y centralización de instalaciones climáticas.Los cerramientos exteriores son de muy alta calidad material: ladrillo klinker de medida catalana (6 x 14 x 24), 2 cm de enfoscado, 8 cm de lana de roca y trasdosado interior de placas de yeso laminado. Carpintería exterior con rotura de puente térmico. Persianas enrollables de aluminio con aislamiento térmico interior, y vidrio planithern.
Este cerramiento proporciona el suficiente aislamiento acústico, obligatorio tras la entrada en vigor en 2010 del CTE, que limita el nivel sonoro a un valor inferior a 35 db por la noche. Verdaderamente difícil de alcanzar.En los huecos, la carpintería con rotura de puente térmico, el control en el aislamiento de las cajas las persianas enrollables que, en España, son un equipamiento cuasi obligatorio en la construcción de vivienda de protección y el vidrio de baja emisividad en todas las ventanas consiguieron un nivel de confort térmico excelente.
Conclusión
Se quiere señalar que, dentro de la producción de vivienda colectiva, sus destinatarios (los sectores sociales de más bajo nivel de renta) son fuertemente refractarios a la innovación y la experimentación. En este caso el énfasis en los trabajos presentados no está en la innovación formal o iconográfica pero sí, y muy enfáticamente, en la estructura organizativa, en controlar los parámetros más significativos de una arquitectura residencial de combate, y, a veces, en ganar en confort material y ambiental, tanto para su promotor como para sus usuarios.







