Arquitectos: Raimundo Alberich Cid, Fernando Casqueiro Barreiro
Fecha de proyecto: 2006
Construcción: 02-02-2009 / 03-08-2011
Promotor: Fomento de Construcciones SA
Empresa constructora: FCC
Localización: Avda. Castilla y León 9, Tres cantos (Madrid)
Superficie útil residencial (Sur): 11.982’50 m2
Superficie construida residencial (Scr): 14.590’26 m2
Scr/Sur = 1’21
Superficie construida total (Sc): 25.164’73 m2
Presupuesto total: 9.060.000€
Presupuesto unitario: 360.02 €/m2c
Entorno Urbano
En un nuevo desarrollo de la ciudad de Tres Cantos se proyectan grandes parcelas de uso residencial, con morfología urbana de bloque abierto y espacio entre bloques ajardinados. La edificación se lleva a cabo simultáneamente a la urbanización por lo que no existen referencias de entorno en el momento de redactar los proyectos.
Planeamiento urbanístico
El Plan General de Tres Cantos y el Plan Parcial que desarrolla el área determinan la edificabilidad, las proporciones, las zonas de posición de la edificación (aquí llamadas “áreas de movimiento”) e incluso el tipo edificatorio: Alquiler Joven con Opción a Compra (AJOC).
Disposición general
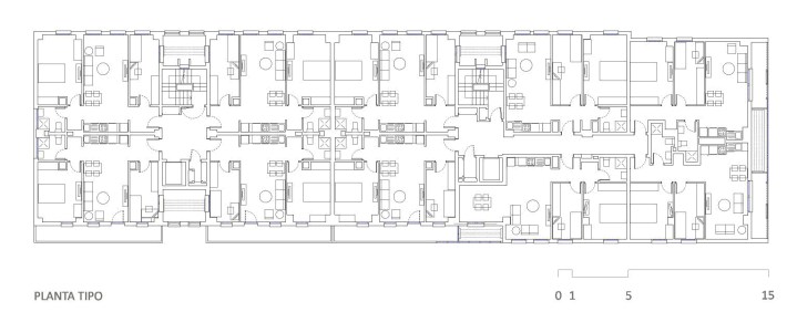
Se proyectan tres bloques rectangulares paralelos en el interior de las “áreas de movimiento” predeterminadas por el Plan Parcial.
Inexplicablemente las normas impiden orientar las viviendas en dirección E y O, lo que obliga a que el 50% de las viviendas estén orientadas a N.
Tipos residenciales
El planeamiento urbanístico determina que las viviendas serán las llamadas “Viviendas de Alquiler Joven con Opción a Compra” (AJOC) con un tamaño y una “composición interna” muy fuertemente determinada por las leyes madrileñas.
Se trata de Apartamentos destinados al alquiler, con una opción de compra, que han de disponer de una superficie construida máxima de 70 m2 con un programa obligatorio de dos dormitorios, un baño y una estancia con cocina incorporada a ella.Se reduce al mínimo el número de núcleos de comunicación para optimizar el factor Scr/Sur = 1’21.
Construcción
Se optimiza el sistema de construcción que es más común, hoy en Madrid, en la construcción de vivienda colectiva protegida.
Estructura de hormigón armado con grandes luces para minimizar su influencia en el interior de las viviendas y cerramiento de ladrillo cerámico con superficie negra a norte para captar energía y blanca a sur para reflejar el exceso de radiación veraniega. Los huecos a norte son horizontales y de un tamaño estricto para reducir pérdidas térmicas y verticales a sur con balcones para permitir el contacto directo con el exterior y, al mismo tiempo, proteger esos huecos de la radiación solar del largo verano madrileño.
Conclusión
Edificación directa y extremadamente eficaz que hace de la sencillez volumétrica, de la repetición de huecos muy simples y de la dicotomía cromática (negro/blanco norte/sur) sus argumentos formales.





