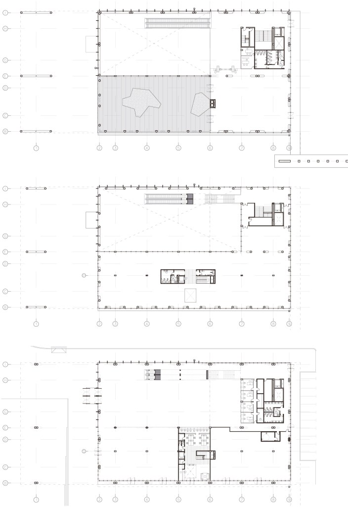
En junio de 2013 se inauguró la nueva Terminal de Pasajeros del puerto de Denia que habíamos empezado a proyectar después de ganar un concurso en 2003.
El edificio, para el que se pretendió la alegría y la energía de los fast ferries de los que se nutre, se concibió y se ejecutó dentro de la interacción extrema de dos de las técnicas de la construcción: la mecánica y la termodinámica.
La transparencia, que se regala a los viajeros como compensación a los tiempos de espera, forzaba a extremar esas dos técnicas sólo en apariencia contradictorias.
Desde la mecánica dispusimos una cubierta muy rígida para minimizar los soportes (que además de la gravedad tienen que resistir sismo) y, al mismo tiempo, pesada para disponer de un almacén de energía barata (inercia térmica).
Desde la termodinámica decidimos que una buena parte del programa podía alojarse con ventaja en recintos no climatizados (el atrio de entrada y la terraza en la planta de salida) y, además, dispusimos un arsenal de dispositivos termodinámicos en toda la envolvente: fuerte aislamiento térmico en cubierta, inercia térmica en los suelos prefabricados de hormigón o de losa armada no ventilada; frente norte de baja emisividad; frente este con llantas-parasoles verticales que son carpintería; frente sur con voladizos horizontales, vidrio serigrafiado y vidrios de bajo factor solar; frente oeste con celosía de acero inoxidable y vidrio de muy bajo factor solar.
Para comprobar la eficacia de las estrategias termodinámicas de proyecto construimos y comparamos dos “versiones electrónicas” del edificio: una, a la que llamamos “de referencia” en la que se aloja el programa en un edificio canónico, de superficie construida y proporciones semejantes al construido y termodinámicamente convencional y otra, a la que llamamos “real”, que refleja el edificio realmente construido.
Los resultados de nuestro “experimento” son que se está reduciendo el consumo en un 21% en el edificio real respecto al “de referencia”. La convivencia fructífera de las dos técnicas, mecánica y termodinámica, es la lección de la Terminal de Denia.
La transparencia y la durabilidad determinan un cierto tipo de estructura mecánica y un comportamiento termodinámico. La termodinámica condiciona el programa y la construcción. La mecánica, con su peso, ayuda a la termodinámica.
En última instancia y, aunque esto es así, lo cierto es que, finalmente y a pesar de que ha sido preciso el uso de algunos aspectos constructivos extremados, no hay en el edificio exhibición ni ostentación. Bajo la modesta capa de hormigón que nos presta la sagrada memoria del suizo Maillart, disponemos el orden y la humildad que nos señala la utilización de los principios de Carnot para construir un recinto transparente, alegre y luminoso, como las caras de los viajeros que por cientos de miles parten cada año desde Denia para Ibiza.



